| Sign In | Join Free | My disqueenfrance.com |
|
Brand Name : Kuangyuan
Model Number : KSSL
Certification : CE ISO GOST SGS
Place of Origin : Henan
MOQ : 1 set
Price : Negotiation
Payment Terms : L/C, T/T, Western Union
Supply Ability : 35000 Set/Sets per Year
Delivery Time : 35 working days
Packaging Details : Packed by woven plastic cloth, electrical parts and other parts packaged in high quality plywood crate. But the container is also accepted if it is suitable.
Lifting mechanism : European electric hoist
max lifting load : 5-150T
electric parts : Siemens
Control Method : Remote Control, cabin control
working duty : M5
span : 10.5~31.5m
Speed : Frequency control speed
traveling speed : 20m/min
Power Source : 380~480V/Custmized
warranty : one year
10 Ton KSSL Type European Model Double Girder Overhead Crane for Workshop
Product description of european model double girder overhead crane :
European Double girder overhead crane is composed with Girder frame, Crane travel device, and the trolley with lifting and moving device. There are Pave the rail for the trolley move on the main girder.Assemble the moving table on the outside of the two main girder, one side is prepare for the assemble and maintenance the crane move device, another side is prepare for the assemble of the trolley conductor device.
European Standard Electric Motor Drive Traveling Beam Overhead Bridge Crane is designed with compact structure, small wheel pressure, which carries out effective use of limited plant space, and reduce the cost of plant structure.
Security of european wire rope hoist lifting equipment:
1. Reducer anti-fall, anti-lock;
2. Outdoor hoist with a rain cover;
3. Alarm indicator;
4. Infrared anti-collision.
Main Features of KSSL model Overhead Crane:
1). Long Life Span: 30-50years;
2). Easy for Installation and maintenance;
3). Reasonable structure and strong rigidity;
4). The speed can be frequency inverter speed control;
5). Control method is cabin control or remote control;
6). Depending on lifting cargo, crane can be equipped with hanging beam magnet or magnet chuck or Grab or C hook;
7). Crane is equipped with all moving limit switch, loading limit and other standard safety devices, to ensure crane work safe
Our Advantage:
The 2,700-plus-member factory covers over 680,000 square meters and has a total asset of RMB 660 million. The 1,200-plus equipment enable the company to independently conduct over 20 technological flows, including lathing, milling, planning and grinding, The 180-plus intermediate and senor technical staff are responsible for R&D and production of all the products. The products have passed CE SGS TUV BV and CU-TR verification, and factory passed ISO9001-2008 international certification, IS014001:1996 environmental and ISO28001-2001 quality, health and safety certification. Our company has perfect quality-control system, strict and comprehensive management system, strong production capability and advanced test measures, guaranteeing high quality, output, competitiveness and market share.
Product technical parameters
| KSSL Double Beam Bridge Crane | ||||||||
| Lifting Weight (t) | 5 | 10 | 16 | 20 | 25 | 32 | 40 | 50 |
| Working Level | FEM 2M A5 | |||||||
| Lifting Height (m) | 6/9/12/15/18/24 | |||||||
| Lifting Speed (m/min) | 5/0.8 | 4/0.67 | 0-4.9 | 0-3.2 | ||||
| Span (m) | 10.5-31.5 | |||||||
| Operating Mode | Groud manual switch/Remote control/Driver's cabin | |||||||
| Vehicle Weight (t) | 4.7-17.6 | 4.9-22.4 | 7.4-24.6 | 8-28.3 | 9.4-32.2 | 10.4-34.5 | 13.6-38.1 | 14.6-40.1 |
| Wheel Pressure (kN) | 43-74 | 69-105 | 110-154 | 130-180 | 158-215 | 201-261 | 254-315 | 311-375 |
| Track Model | P38 | P38 | P38 | P38 | P38 | QU70 | QU70 | QU70 |
| Total power (kW) | 13.56 | 14.5 | 16.5 | 20.9 | 24.4-28 | 30.2/32.2 | 39/41 | 41/43 |
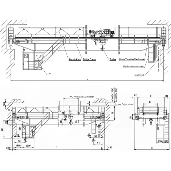
Drawing of KSSL model Overhead Crane:


|
|
10 Ton KSSL Type European Model Double Girder Overhead Crane for Workshop Images |